 
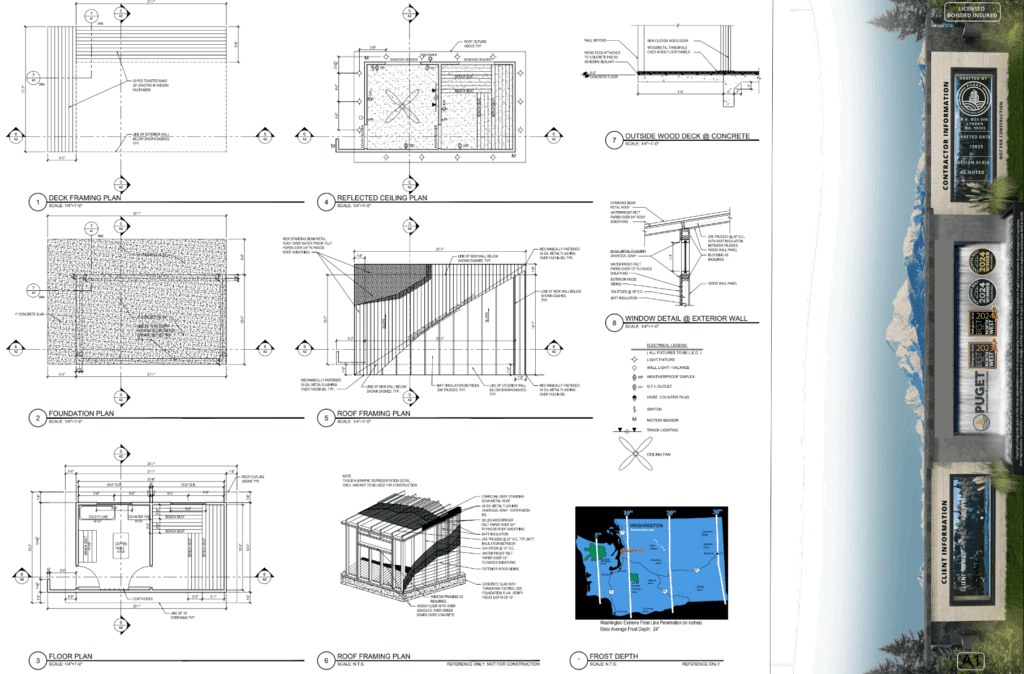
															Every sauna we build is thoughtfully designed around your space, lifestyle, and aesthetic preferences. From size and layout to materials, lighting, and seating, we ensure every detail enhances both comfort and visual appeal.
 
															We source only the highest-quality woods, such as cedar and hemlock, paired with efficient electric, wood-burning, or infrared heating systems. Each sauna is carefully engineered for consistent warmth, proper ventilation, and lasting performance.
 
															Our team handles every step from start to finish, including framing, electrical work, and finishing touches. We also offer luxury upgrades like sound systems, lighting controls, and custom glass features to create your ideal relaxation space.
 
															Our custom sauna installation process is designed to deliver lasting comfort, performance, and aesthetic appeal. Whether you’re installing a pre-built sauna or want a freestanding custom outdoor sauna in Bellingham or Whatcom County, we handle every detail from design to completion.
Each sauna is engineered for efficiency, durability, and beauty. We start with a detailed site assessment and design consultation to ensure your new sauna fits seamlessly into your space and meets all local building requirements. From there, our craftsmen bring your vision to life with premium materials and precise construction.
Our comprehensive sauna construction service includes: